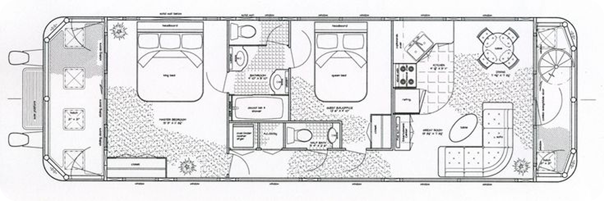
Планировка хаусбота

На макете представлена планировка проекта МАЯК-1

1 этаж 2 этаж

Характеристики

Площадь

136,23 м²

Количество кают

5 кают

Площадь рубки

136,23 м²

Площадь палубы

136,23 м²

Количество этажей

1 этаж

Высота панели

7,62 м

Ширина панели

7,62 м

Количество этажей

1 этаж

Стоимость

10 000 000 ₽

Цена за м²

100 000 ₽/м²

Апартаменты бизнес-класса

Наши хаусботы — это плавучие апартаменты с продуманной планировкой и высоким уровнем комфорта. Здесь есть всё для комфортной жизни: просторные комнаты, современные инженерные системы и уютные зоны отдыха, которые делают пребывание на воде приятным и удобным.

Полная независимость на воде

Наши хаусботы автономны и оснащены собственными источники электроэнергии, системами очистки и подачи воды, а также эффективными системами отопления и вентиляции. При этом предусмотрена возможность использования береговых коммуникаций в портах и яхт-клубах.

Посмотрите дом онлайн

галерея

Технологии проекта

ТЕХНОЛОГИИ НА ВОДЕ

Индивидуальный подход

ПЛАВУЧЕЕ ОСНОВАНИЕ

Прочность корпуса и мореходные качества
понтона обеспечивают его безопасную эксплуатацию на реках, озёрах и бухтах,
при удалении от берега до 3 000 м и высоте волны не более 0,4 метра.

Гарантия и сервис

ПРОЧНЫЙ КАРКАС

Каркасы производятся по голандским технологиям и исключительно из
европейского сырья, используемого в судостроении, что лишь подчеркивает
высокое качество конечной продукции.

Надежность и качество

ИЗЯЩНЫЙ ИНТЕРЬЕР

В интерьере хаусботов используются натуральные материалы премиум-класса: керамогранит, искусственный камень, ламинированные компакт-плиты и
палубное покрытие из тикового дерева.

Посмотрите дом онлайн

3D-тур

Особенности планировки

УЮТ В каждой КАЮТе

УЮТНАЯ ГОСТИНАЯ

Гостиная оформлена в современном стиле с использованием натуральных материалов и мягких текстур. Большие окна наполняют пространство светом, создавая атмосферу тепла и уюта. Это идеальное место для уютных вечеров с семьей и друзьями.

КАКИМИ БЫЛИ
КАКИЕ СЕЙЧАС

КУХНЯ НА КОРАБЛЕ

Современная кухня на хаусботе оборудована встроенной техникой, удобными рабочими поверхностями и продуманной системой хранения. Эргономичная планировка обеспечивает комфортное приготовление пищи даже в ограниченном пространстве.

УЛИЧНЫЙ ОТДЫХ

Палубы первого этажа и просторная верхняя терраса создают идеальные зоны для отдыха на свежем воздухе. Здесь можно устраивать встречи с друзьями, семейные ужины или просто наслаждаться панорамными видами и природой вокруг.

КАКИМИ БЫЛИ

Рассчитать стоимость и сроки
строительства хаусбота

Наши специалисты готовы ответить на все возникшие вопросы и провести бесплатную консультацию.

Нажимая на кнопку, вы соглашаетесь с Политикой обработки персональных данных